1865 Victorian House With An In-Door Pool In Bethlehem, New York
This beautifully renovated Victorian house is nestled in the heart of Bethlehem, New York.
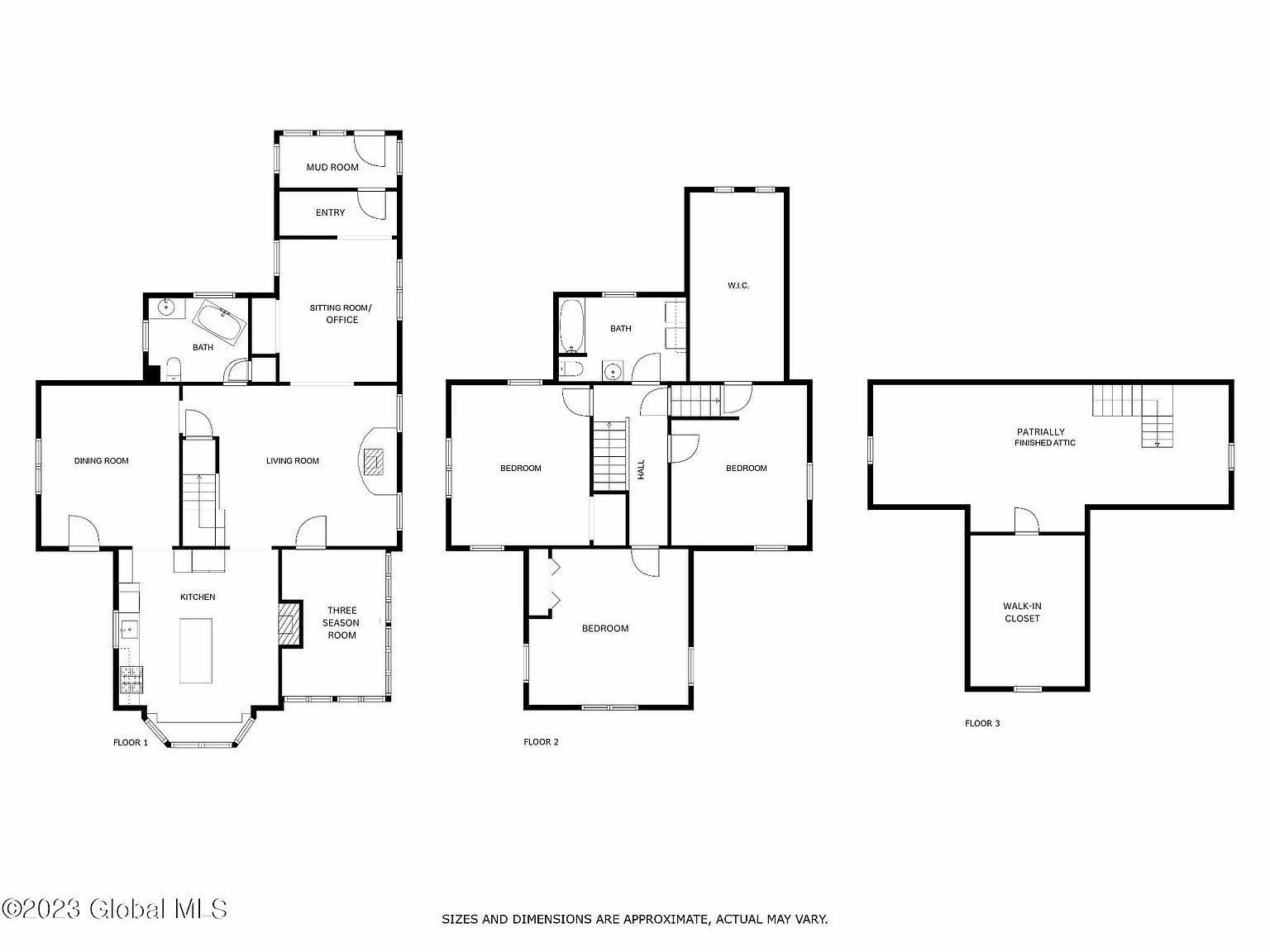
It was built in 1865 with 4 bedrooms and 3 bathrooms and has been meticulously updated over the past two decades, including an in-ground pool, large barn, walk-up loft, and bonus space.
Spread across 2,400 square feet of interior space, this home offers a warm and inviting atmosphere.
Every room has been thoughtfully revitalized, preserving the timeless appeal of the Victorian era while incorporating modern amenities for today’s lifestyle.
Sitting on a generous 72-acre lot, the property boasts a lush, flat lawn adorned with a variety of fruit and vegetable gardens.
The inviting in-ground pool is a highlight of the outdoor space, perfect for cooling off on hot summer days or hosting gatherings with family and friends.
Inside the home, you’ll find a flexible floor plan that caters to modern living, with features such as natural gas heat and Verizon Fios Internet connectivity ensuring comfort and convenience year-round.
Conveniently located just a short drive from shopping, dining, the City of Albany, and major highways, this property offers the perfect blend of tranquility and accessibility.






































- Price: $395,000
- Contact: Judith Gabler, Gabler Realty
Tel: (518) 727-5653
Office: (518) 935-4800
Email: [email protected] - Address: 32 South Street, Bethlehem, NY 12158
Photos and info: Gabler Realty

