You Almost Didn’t Have The Chance To See This Ancient Egyptian Temple Commissioned By The First Emperor Of The Roman Empire
The Temple of Dendur, an extraordinary relic of ancient Egyptian civilization, now resides in one of the most iconic museums in the United States, the Metropolitan Museum of Art in New York City.
This temple, originally located in the town of Dendur, south of Aswan, offers a fascinating glimpse into Egypt’s rich history and culture.
Here are some intriguing facts about this remarkable structure.

Commissioned By The First Roman Emperor
The Temple of Dendur was built around 23-10 BCE.
It was commissioned by Caesar Augustus, the first emperor of the Roman Empire.
Augustus was the adopted son of Julius Caesar.
He ruled Egypt after the defeat of Mark Antony and Cleopatra in 31 BCE.
The temple’s construction was overseen by Gaius Petronius, the Roman governor of Egypt, and was completed in 15 BCE.
It served as a part of Augustus’s extensive propaganda campaign to legitimize his rule and consolidate his power.

From The Banks Of The Nile To The Big Apple
Originally, the temple was situated in the town of Dendur, approximately 80 kilometers (50 miles) south of Aswan in southern Egypt.
The town of Dendur, known as “Tuzis” in ancient times, no longer exists as it was submerged by Lake Nasser, the reservoir created by the construction of the Aswan High Dam in 1960.

At first, they planned to submerge the temple permanently. However, UNESCO started the International Campaign to Save the Monuments of Nubia, including the Temple of Dendur.
The Temple of Dendur was dismantled in 1963 and moved from its original position.
In 1965, Egypt gifted the temple to the United States to thank them for contributing $16 million to save other monuments threatened by the Aswan High Dam. Jacqueline Kennedy accepted the gift on behalf of the U.S.

In 1967, a commission was set up to decide where the temple would be displayed, leading to what the press called the “Dendur Derby.”
Cities like Cairo, Illinois, and Memphis, Tennessee, felt they were ideal because of their namesakes, but the commission disagreed.
Many schoolchildren wrote to President Johnson, asking for the temple to be moved to Phoenix, Arizona.
Proposals included the Smithsonian in Washington, D.C., and the Boston Museum of Fine Arts, but these were rejected due to concerns about weather damage.

On April 20, 1967, President Lyndon B. Johnson awarded the temple to The Metropolitan Museum of Art (the Met) in New York City.
The temple, consisting of 661 blocks of sandstone weighing 640 tons, was dismantled, packed into 661 crates, and shipped to New York on the SS Concordia Star, arriving on August 29, 1968.
It cost $9.5 million to move the temple, with financial support from Lila Acheson Wallace.

Dedicated To Four Deities
Unlike many temples which were dedicated to a single deity, the Temple of Dendur honored four.
The main gods worshipped here were Isis and Osiris, two of the most important deities in Egyptian mythology. Osiris was worshipped as the god of fertility and agriculture.
The temple was located near the Nile River, which played an important role in Egypt’s agriculture as the source of irrigation.
Additionally, the temple was dedicated to Pediese and Pihor, two deified sons of a local Nubian chief.
This unique dedication highlights the temple’s cultural and religious significance in the region.

A Modest Yet Majestic Structure
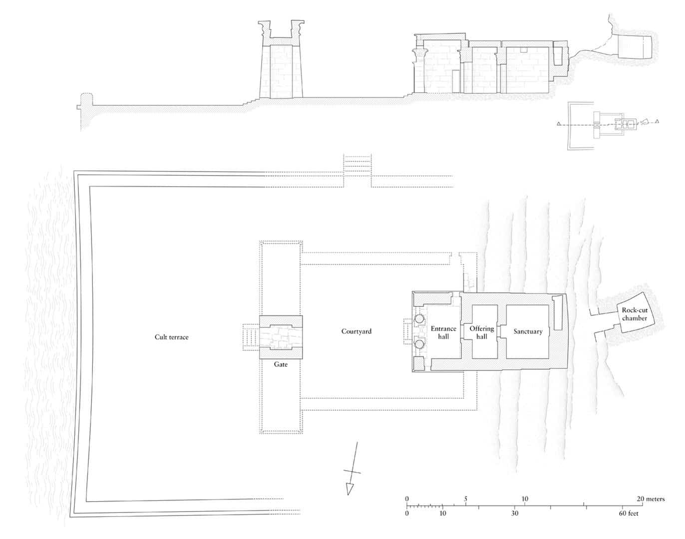
By ancient Egyptian standards, the Temple of Dendur is relatively small, measuring about 25 meters (82 feet) in length and 8 meters (26 feet) in height.
The inner sanctuary is even more compact, measuring 6.55 by 13 meters (21.5 by 42.7 feet).
It consists of a series of chambers aligned on an east-west axis, typical of Egyptian temple layouts.
Pylon

The outermost part is a large stone gateway or pylon, which leads to a courtyard.
This courtyard, once open to the sky, features low stone walls and was likely used for public ceremonies and offerings.
The innermost sanctuary
Beyond the courtyard lies the pronaos, a small vestibule that leads to the innermost sanctuary.

This sanctuary housed the cult statue and was the most sacred part of the temple.

The temple is built from fine sandstone blocks, meticulously carved and fitted together.
The walls of the sanctuary are adorned with carvings and inscriptions, including depictions of the emperor Augustus as a pharaoh making offerings to the gods.
These depictions were a strategic move to present Augustus not just as a Roman ruler but as a legitimate pharaoh of Egypt.
Hieroglyphs refer to him as both “Caesar” and “Autokrator,” a Greek term meaning emperor, cementing his status as a powerful and divine ruler.

Carvings Of Lotus And Papyrus Plants
The temple’s artistic features include detailed carvings of lotus and papyrus plants, symbolizing Upper and Lower Egypt, respectively.
These motifs are found on the capitals of the columns in the pronaos.

How Is The Temple Today?
Today, the Temple of Dendur is a centerpiece of The Metropolitan Museum of Art in New York City.
It is housed in the Sackler Wing, a modern space designed specifically to exhibit this ancient monument.
The wing features a large glass wall, allowing natural light to illuminate the temple and providing a view of Central Park, which enhances the temple’s serene atmosphere.

The temple is displayed in a spacious, climate-controlled environment that mimics the dry conditions of Egypt, crucial for its preservation.
The room includes a reflecting pool, which not only adds to the aesthetic appeal but also recalls the Nile River, where the temple originally stood.
This setting allows visitors to experience the temple in a manner similar to its original context.

